Логопарк в Кольцово получил официальное имя

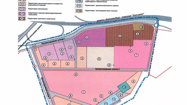
Теперь один из крупнейших торгово-логистических центров в Свердловской области будет называться "Логопарк Кольцовский". Проект логопарка был утверждён в начале 2016 года. По задумке, помимо непосредственно логистического комплекса, там должны разместиться склады, торговые точки и некоторые общественные объекты. Общая площадь проектируемой территории составляет 83,74 га. Напомним, "Логопарк Кольцовский" будет функционировать под развязкой между Кольцовским и Сибирским трактом, на правом берегу реки Исток. В нём уже появились первые резиденты - оптово-распределительный центр X5 Retail Group, авто-техцентры дорожно-строительной техники Caterpillar, Mitsuber, CASE.

Логопарк в Кольцово получил официальное имя
© Областная газета