Общественное обсуждение предпроектной концепции благоустройства сквера пройдет в «Моссовете»

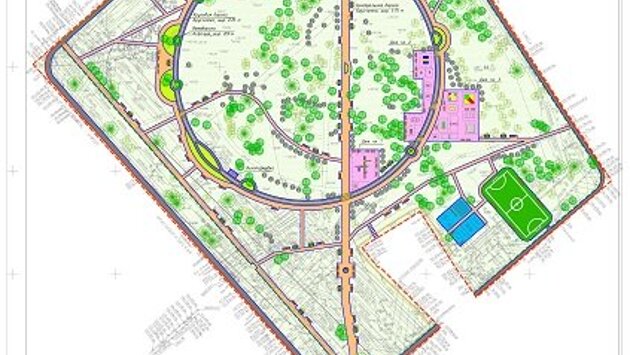
Жители нашего района решат, как благоустроить сквер на улице Алымова. Разработку концепции благоустройства сквера, который находится между улицами Краснобогатырской и Алымова, инициировали сами преображенцы. Общественное обсуждение предпроектных предложений состоится в малом зале Общественного центра «Моссовет» на Преображенской площади 1 марта. Начало обсуждения – в 17.30. Жители нашего района затронули тему благоустройства сквера между улицами Краснобогатырской и Алымова в декабре 2017 года, когда высказывали свои предложения и пожелания по благоустройство Детского Черкизовского парка. В результате разработали концепцию развития этого зеленого островка. Обсудить данный документ могут все заинтересованные жители Преображенки.

Общественное обсуждение предпроектной концепции благоустройства сквера пройдет в «Моссовете»
© Управа района Преображенское